Ático en Vitoria

Ático en Vitoria

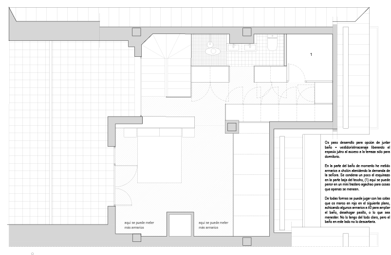
Este proyecto parte del deseo de una familia por transformar el ático de su vivienda en Vitoria en una suite privada con baño, destinada a la pareja. El reto era doble: conseguir un espacio amplio y confortable que ofreciera intimidad, y al mismo tiempo resolver las necesidades de almacenaje sin comprometer la sensación de apertura.

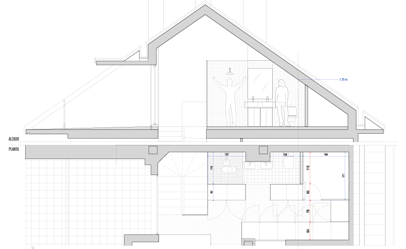
Se planteó una distribución que aprovecha la relación vertical con los cuartos húmedos de las plantas inferiores, facilitando la integración del baño en la nueva planta. Uno de los aspectos más destacados es el aprovechamiento inteligente de la pendiente de la cubierta, donde se diseñaron armarios extraíbles sobre ruedas que maximizan el almacenamiento sin ocupar espacio visual. El resultado es un refugio funcional y sereno, pensado para el día a día y adaptado a las necesidades reales de quienes lo habitan.